Design Concept Mission   International   is   basically   a   non-denomination   church   that   outreaches   her   ministry   to   young   generations for   high   school   and   university   students.   MI’s   unique   program   includes   Sunday   church   service,   various   English classes,   coffee   house,   BBQ   party,   accommodation   for   missionaries,   etc.   those   of   which   are   mainly   focused   on education   for   students.   Due   to   its   various   program   requirement,   this   Mixed-use   building   becomes   in   need   of special design to meet this sole purpose of the mission.  
MI International
© 2017 by TheeAe Architecture & Interior Design
Contact us for any inquires on our projects and services. info@theeae.com | Tel +852.2976.4543
587 sqm 900 sqm Level 1 to Level 4 16m Daegu, South Korea Completed, 2012 Mixed Use Cultural
Building Description   Site Area :             Total Building Area :       Floors:                           Height :                          Location :                           Status : Type :                           
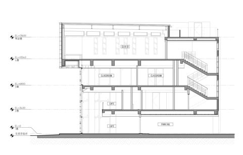
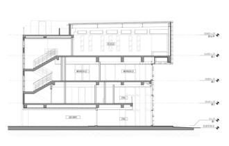
SECTION DRAWINGS                                                                   
Program   requirements   are   set   to   accommodate   missionaries’   short   stays,   staff   offices,   classrooms,   church service   auditorium,   kitchens   and   coffee   shop,   and   all   other   common   spaces   such   as   toilet,   elevator   lobbies, parking   space,   etc.   Besides   needs   on   those   functions,   the   most   rigorous   restriction   in   our   design   proposal   was the   construction   budget.   The   only   sponsor   who   donated   for   this   project   was   the   church   paster   himself   since the   ministry   was   only   focused   on   students.   Our   design   is   to   be   mostly   functional   and   the   space   has   to   be minimized   yet   maximized   to   meet   the   low   cost   construction   method   by   following   the   local   building   code   as well as the need to increase the visual awareness to express the church’s unique presence among the region.
By   regional   building   code   requirements,   the   1st   floor   was   setback   for   parking   space   for   this   building   size.   2nd floor   and   3rd   floor   are   designed   to   include   classrooms,   coffee   shop,   short   stays   for   missionaries   as   well   as offices.   Lastly,   4th   floor   is   designed   for   the   church   service   to   include   250~300   people   for   Friday,   Saturday   & Sunday services.
The   featured   aluminum   metal   fins   attached   to   the   exterior   curtain   wall   are   to   express   the   letter   ‘MI’   as   the gesture   to   continue   the   design   element.   Thus,   porous   metal   panel   attached   at   L4   was   to   cover   the   corrugate metal panel which was placed to increase thermal insulation as well as to reduce the cost of the wall structure.
587 sqm 900 sqm Level 1 to Level 4 16m Daegu, South Korea Completed, 2012 Mixed Use Cultural
Building Description   Site Area :             Total Building Area :       Floors:                           Height :                          Location :                           Status : Type :                           
    MI International   
The   featured   aluminum   metal   fins   attached   to   the exterior   curtain   wall   are   to   express   the   letter   ‘MI’   as the   gesture   to   continue   the   design   element.   Thus, porous   metal   panel   attached   at   L4   was   to   cover   the corrugate   metal   panel   which   was   placed   to   increase thermal   insulation   as   well   as   to   reduce   the   cost   of the wall structure.
By   regional   building   code   requirements,   the   1st floor    was    setback    for    parking    space    for    this building     size.     2nd     floor     and     3rd     floor     are designed    to    include    classrooms,    coffee    shop, short   stays   for   missionaries   as   well   as   offices. Lastly,    4th    floor    is    designed    for    the    church service    to    include    250~300    people    for    Friday, Saturday & Sunday services.
Program   requirements   are   set   to   accommodate missionaries’       short       stays,       staff       offices, classrooms,        church        service        auditorium, kitchens     and     coffee     shop,     and     all     other common   spaces   such   as   toilet,   elevator   lobbies, parking    space,    etc.    Besides    needs    on    those functions,   the   most   rigorous   restriction   in   our design   proposal   was   the   construction   budget. The   only   sponsor   who   donated   for   this   project was     the     church     paster     himself     since     the ministry    was    only    focused    on    students.    Our design   is   to   be   mostly   functional   and   the   space has   to   be   minimized   yet   maximized   to   meet   the low   cost   construction   method   by   following   the local    building    code    as    well    as    the    need    to increase   the   visual   awareness   to   express   the church’s unique presence among the region.
Design Concept Mission      International      is      basically      a      non- denomination     church     that     outreaches     her ministry   to   young   generations   for   high   school and    university    students.    MI’s    unique    program includes   Sunday   church   service,   various   English classes,         coffee         house,         BBQ         party, accommodation   for   missionaries,   etc.   those   of which    are    mainly    focused    on    education    for students.       Due       to       its       various       program requirement,   this   Mixed-use   building   becomes in    need    of    special    design    to    meet    this    sole purpose of the mission.  
© 2017 by TheeAe Architecture & Interior Design
Contact us for any inquires on our projects and services. info@theeae.com | Tel +852.2976.4543